Описание
Характеристики
Отзывы
Пластинчатый теплообменник Tranter GX – 265N/P представляет собой оборудование поверхностного типа, в котором происходит передача тепла между средами: нагревающей и нагреваемой. Тепло передается через металлическую стенку.
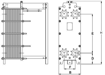
Размеры
- D – 360 мм;
- Высота H – 3795 мм;
- Диаметр присоединения Ду – 300;
- B – 1060 мм;
- E – 2880 мм;
- F – 570 мм.
ТЕХНИЧЕСКИЕ ХАРАКТЕРИСТИКИ ТЕПЛООБМЕННИКА TRANTER GX – 265N/P
- максимальная рабочая температура 180 °С;
- максимальное рабочее давление 16 бар;
- используемые материалы уплотнений - Nitrile, EPDM, FKM, Viton;
Характеристики
Бренд
Tranter
Отзывов ещё нет — ваш может стать первым.
Все отзывы 0
Список отзывов пуст







































