Описание
Характеристики
Отзывы
Теплообменник Tranter GX – 145N/P создан по уникальной технологии с комбинированием острых и тупых углов, что обеспечивает примерно шесть различных вариантов конфигурации каналов.
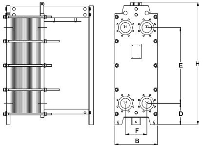
Размеры
- D – 360 мм;
- высота H – 2565 мм;
- диаметр присоединения Ду – 300;
- B – 1060 мм;
- E – 1720 мм;
- F – 570 мм.
ТЕХНИЧЕСКИЕ ХАРАКТЕРИСТИКИ ТЕПЛООБМЕННИКА TRANTER GX – 145N/P
- максимальная рабочая температура 180 °С;
- максимальное рабочее давление 16 бар;
- используемые материалы уплотнений - Nitrile, EPDM, FKM, Viton;
- ХарактеристикиБрендTranterОтзывов ещё нет — ваш может стать первым.Все отзывы 0
Список отзывов пуст







































