Описание
Характеристики
Отзывы
Теплообменник Tranter GX – 091P состоит из отдельных пластин, расположенных на несущей и направляющей платформах, и зажатых подвижной и неподвижной плитами. Для модели Tranter GX – 091P индивидуально подобрано определенное количество гофрированных пластин, благодаря чему выполняется передача тепла и повышается эффективность работы теплообменника.
Размеры
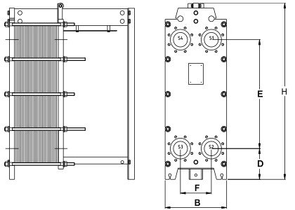
- D – 300 мм;
- высота H – 2390 мм;
- диаметр присоединения Ду – 150;
- B – 626 мм;
- E – 1800 мм;
- F – 285 мм.
ТЕХНИЧЕСКИЕ ХАРАКТЕРИСТИКИ ТЕПЛООБМЕННИКА TRANTER GX – 091P
- максимальная рабочая температура 180 °С;
- максимальное рабочее д
Характеристики
Бренд
Tranter
Отзывов ещё нет — ваш может стать первым.
Все отзывы 0
Список отзывов пуст







































