Описание
Характеристики
Отзывы
Конструкция теплообменника Tranter GX – 051N основана на модульном принципе. Теплообменник является пакетом теплообменных пластин, закрепленных на несущей и направляющей консолях, которые зажаты между подвижной и неподвижной плитой. Пластины производят из нержавеющей стали высокого качества, которую изготавливают в Швеции.
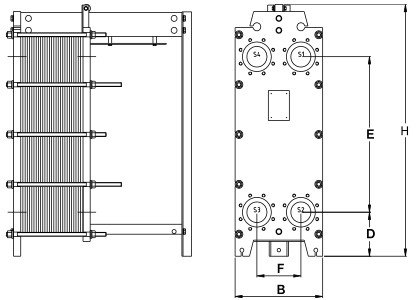
Размеры
- D – 300 мм;
- высота H – 1730 мм;
- диаметр присоединения Ду – 150;
- B – 5 мм;
- E – 1143 мм;
- F – 300 мм.
ТЕХНИЧЕСКИЕ ХАРАКТЕРИСТИКИ ТЕПЛООБМЕННИКА TRANTER GX – 051N
- максимальная рабочая температура 180 °С;
- максимальное рабочее давление 10 бар;<
Характеристики
Бренд
Tranter
Отзывов ещё нет — ваш может стать первым.
Все отзывы 0
Список отзывов пуст







































