Описание
Характеристики
Отзывы
Конструкция теплообменника модели GL-430 N состоит из пакета гофрированных пластин. Материал изготовления – шведская нержавеющая сталь.
Модульная конструкция отличается особой легкостью и компактностью. Пакет пластин закрепляется на несущей и направляющей консолях. Также он зажимается между подвижной и неподвижной плитами.
Гофрированные пластины качественно уплотнены по периметру и расположены под углом 180 градусов с целью обеспечения оптимального коэффициента теплопередачи.
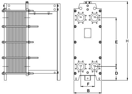
Размеры
- D – 450 мм;
- высота H – 4392 мм;
- диаметр присоединения Ду – 450;
- B – 1510 мм;
- E – 3310 мм;
- F – 700 мм.
Т
Характеристики
Бренд
Tranter
Отзывов ещё нет — ваш может стать первым.
Все отзывы 0
Список отзывов пуст







































