Описание
Характеристики
Отзывы
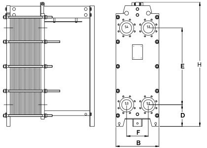
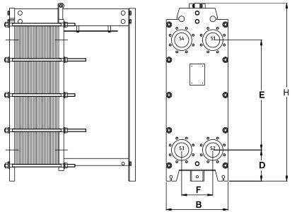
Конструкционное исполнение теплообменника Tranter GL-330 P основано на использовании пакета гофрированных пластин, размещенных относительно друг друга под углом в 180 градусов. Материал изготовления – шведская нержавеющая сталь.
Пластины собраны в пакет, который закреплен на несущей и направляющей консолях. Для большей прочности пакет зажимается двумя плитами: подвижной и неподвижной.
Размеры
- D – 450 мм;
- высота H – 3782 мм;
- диаметр присоединения Ду – 450;
- B – 1540 мм;
- E – 2700 мм;
- F – 700 мм.
ТЕХНИЧЕСКИЕ ХАРАКТЕРИСТИКИ ТЕПЛООБМЕННИКА TRANTER GL-330 P
- максимальная
Характеристики
Бренд
Tranter
Отзывов ещё нет — ваш может стать первым.
Все отзывы 0
Список отзывов пуст







































