Описание
Характеристики
Отзывы
Особенностью теплообменника Tranter GL-330N является модульная конструкция, обеспечивающая легкость монтажа, ремонта и эксплуатации.
За счет применения пакета гофрированных пластин, распложенных под определенным углом, обеспечивается оптимальный коэффициент теплообмена. Данный параметр улучшается за счет применения шведской нержавеющей стали.
Гофрированные пластины надежно закрепляются на несущей и направляющей консолях и прочно зажимаются между двумя плитами: подвижной и неподвижной.
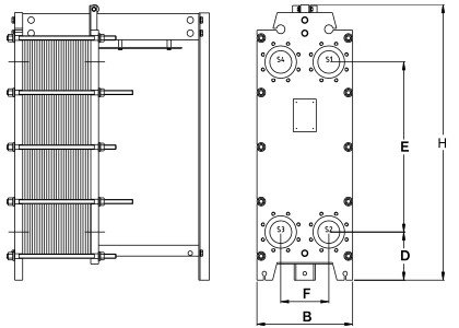
Размеры
- D – 450 мм;
- высота H – 3782 мм;
- диаметр присоединения Ду – 450;
- B – 1510 мм;
- E – 2700 мм;
- F – 700 мм.
ТЕХНИЧЕСКИЕ Х
Характеристики
Бренд
Tranter
Отзывов ещё нет — ваш может стать первым.
Все отзывы 0
Список отзывов пуст







































