Описание
Характеристики
Отзывы
Tranter GL-145 N/P – это пластинчатый теплообменник, изготовленный в виде модульной конструкции. Главным элементом является пакет гофрированных пластин, которые способны обеспечить качественный теплообмен. Материал пластин – шведская нержавеющая сталь. Пакет пластин крепится на несущей и направляющей консолях и зажимается между подвижной и неподвижной плитами.
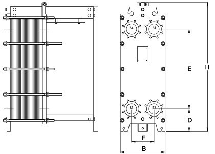
Размеры
- D – 360 мм;
- высота H – 2565 мм;
- диаметр присоединения Ду – 300;
- B – 1060 мм;
- E – 1720 мм;
- F – 570 мм.
ТЕХНИЧЕСКИЕ ХАРАКТЕРИСТИКИ ТЕПЛООБМЕННИКА TRANTER GL-145 N/P
- максимальная рабочая температура 180 °С;
- ХарактеристикиБрендTranterОтзывов ещё нет — ваш может стать первым.Все отзывы 0
Список отзывов пуст







































